Explore ecolog homes plans
Standard plans as a starting point —
fully customizable to your needs
Explore our collection of standard log home plans, designed to give you a clear and reliable starting point for your custom log home. These plans reflect proven footprints and layout concepts that work well across a wide range of sites and lifestyles.
All plans shown here are standard designs. Layouts, room distribution, loft configurations, wings, and optional features can be adjusted to match your specific requirements. We’ll review your ideas together and refine the plan to suit your needs, your property, and local building requirements. If you’d like to take a closer look or save a plan for later, you can download the plans as a PDF directly from here.
Plans are grouped by footprint and layout type to make comparison easy at a glance.
Small Footprint Homes
Ground floor area: approx. 672–864 sq ft
Small Footprint Homes are designed for efficient, compact living without sacrificing comfort. These plans are ideal for cabins, cottages, guest houses, or first homes. Open layouts and usable loft space allow these homes to feel larger than their footprint suggests.
Plans in this category:
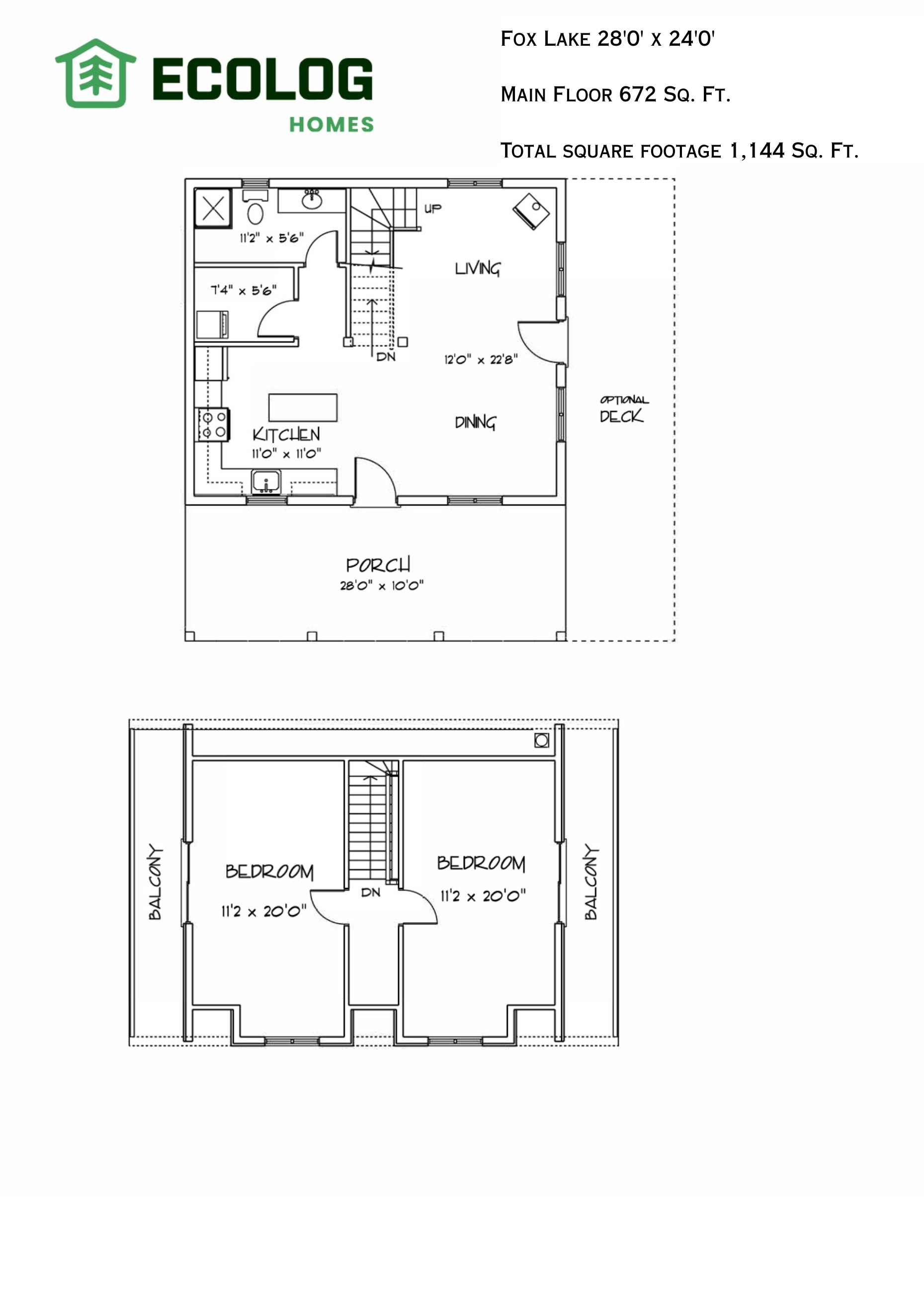
Fox Lake — 672 sq ft ground floor · 1,144 sq ft livable area
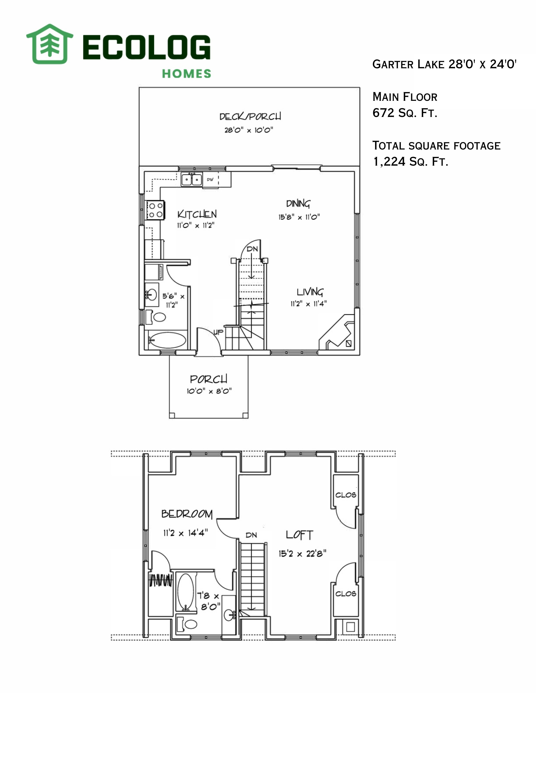
Garter Lake — 672 sq ft ground floor · 1,224 sq ft livable area
Dog Lake — 768 sq ft ground floor · 1,058 sq ft livable area
Island Lake — 768 sq ft ground floor · 1,224 sq ft livable area
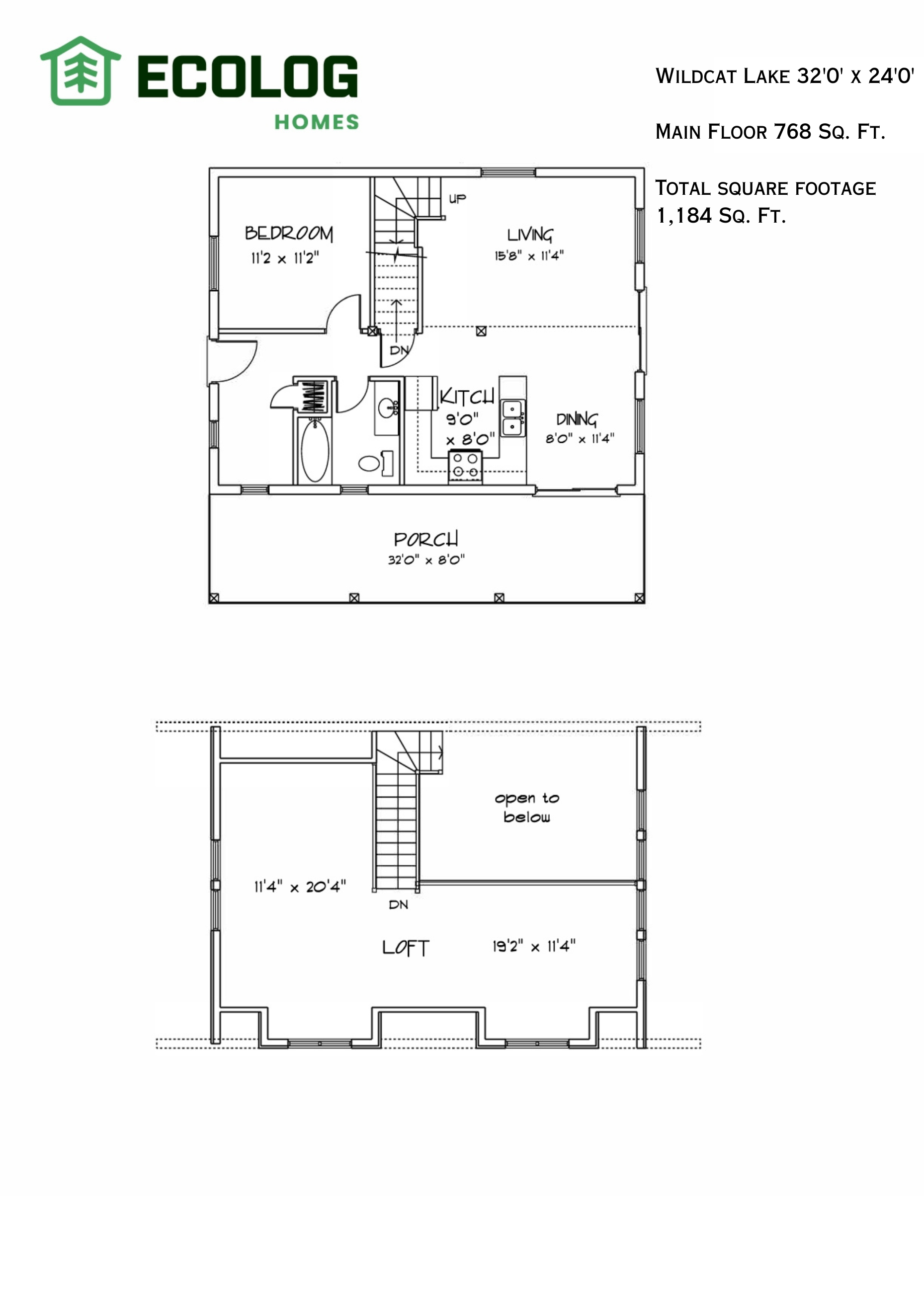
Wildcat Lake — 768 sq ft ground floor · 1,184 sq ft livable area
Kelly Lake — 864 sq ft ground floor · 1,362 sq ft livable area
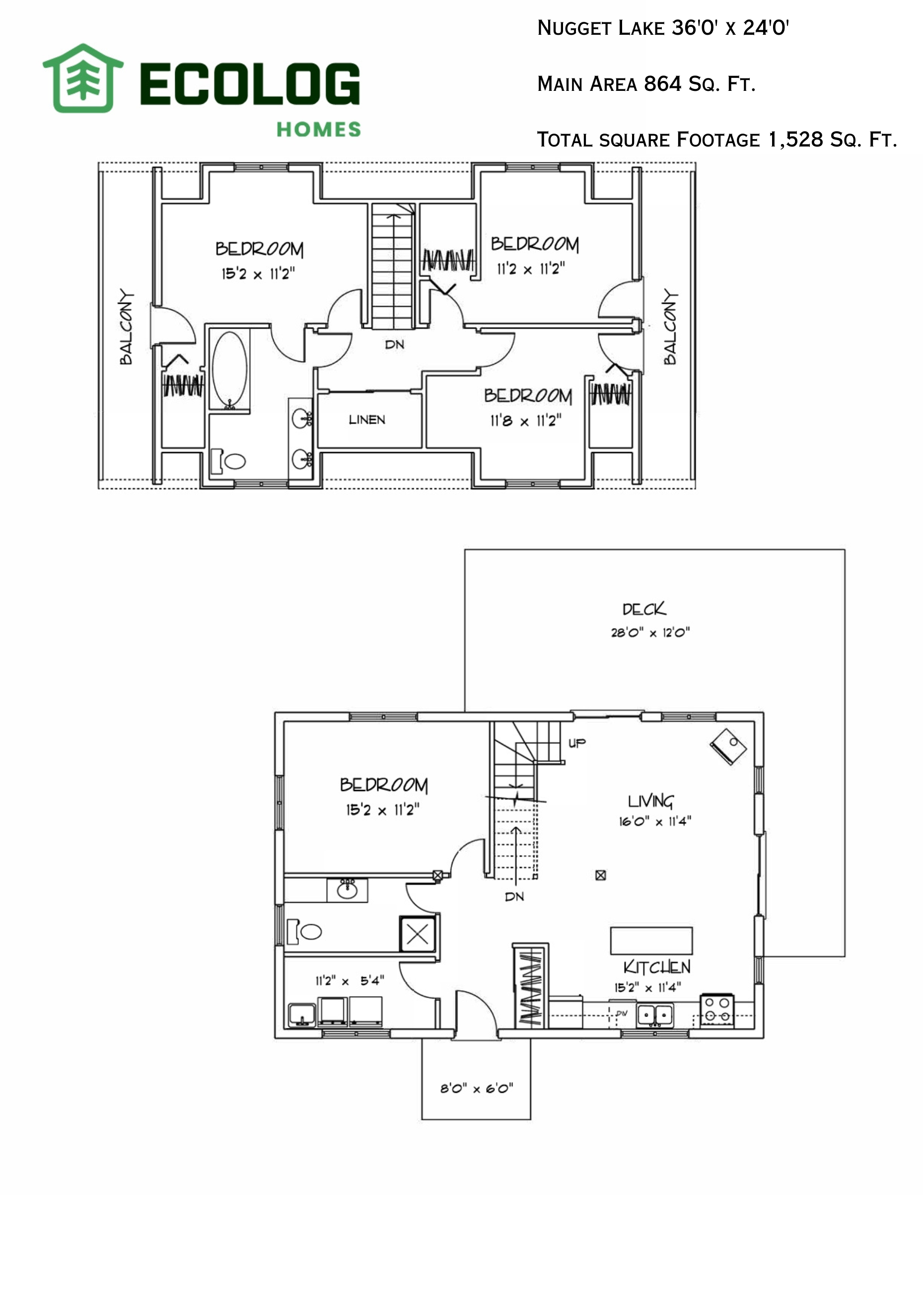
Nugget Lake — 864 sq ft ground floor · 1,528 sq ft livable area
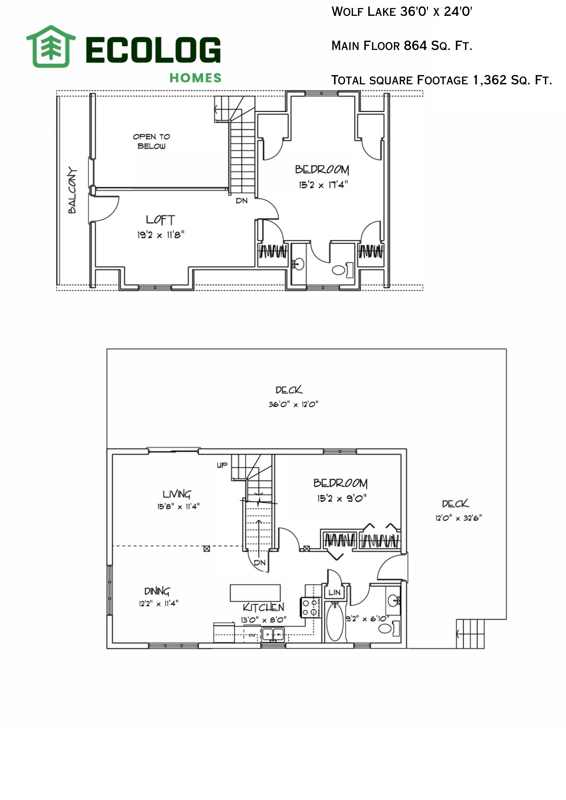
Wolf Lake — 864 sq ft ground floor · 1,362 sq ft livable area
Medium Footprint Homes
Ground floor area: 960–1,152 sq ft
Medium Footprint Homes offer more space and flexibility while maintaining a balanced overall size. These designs are well suited for full-time living or family use, providing comfortable living areas on the ground floor combined with generous loft space.
Plans in this category:
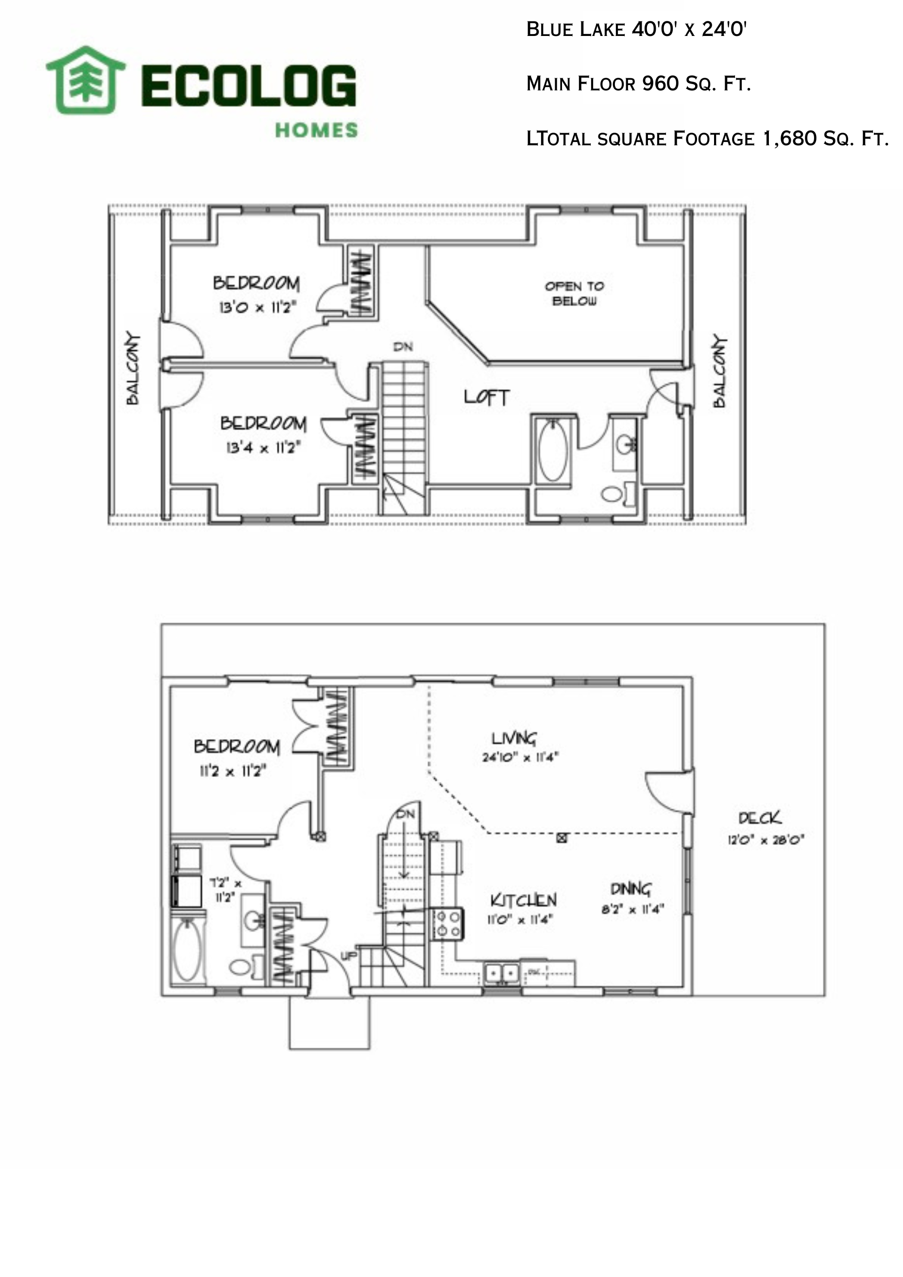
Blue Lake — 960 sq ft ground floor · 1,680 sq ft livable area
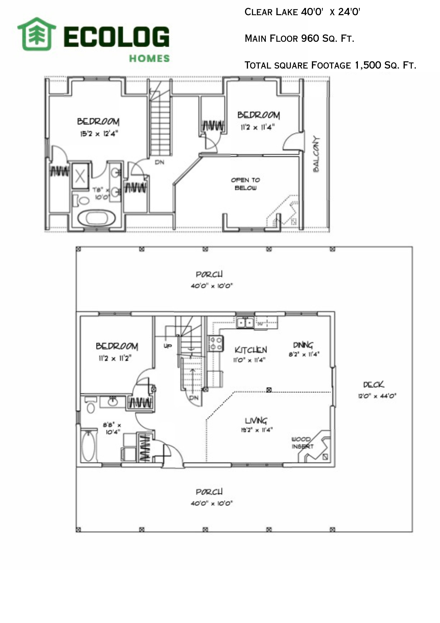
Clear Lake — 960 sq ft ground floor · 1,500 sq ft livable area
Depot Lake — 960 sq ft ground floor · 1,528 sq ft livable area
Dutton Lake — 960 sq ft ground floor · 1,500 sq ft livable area
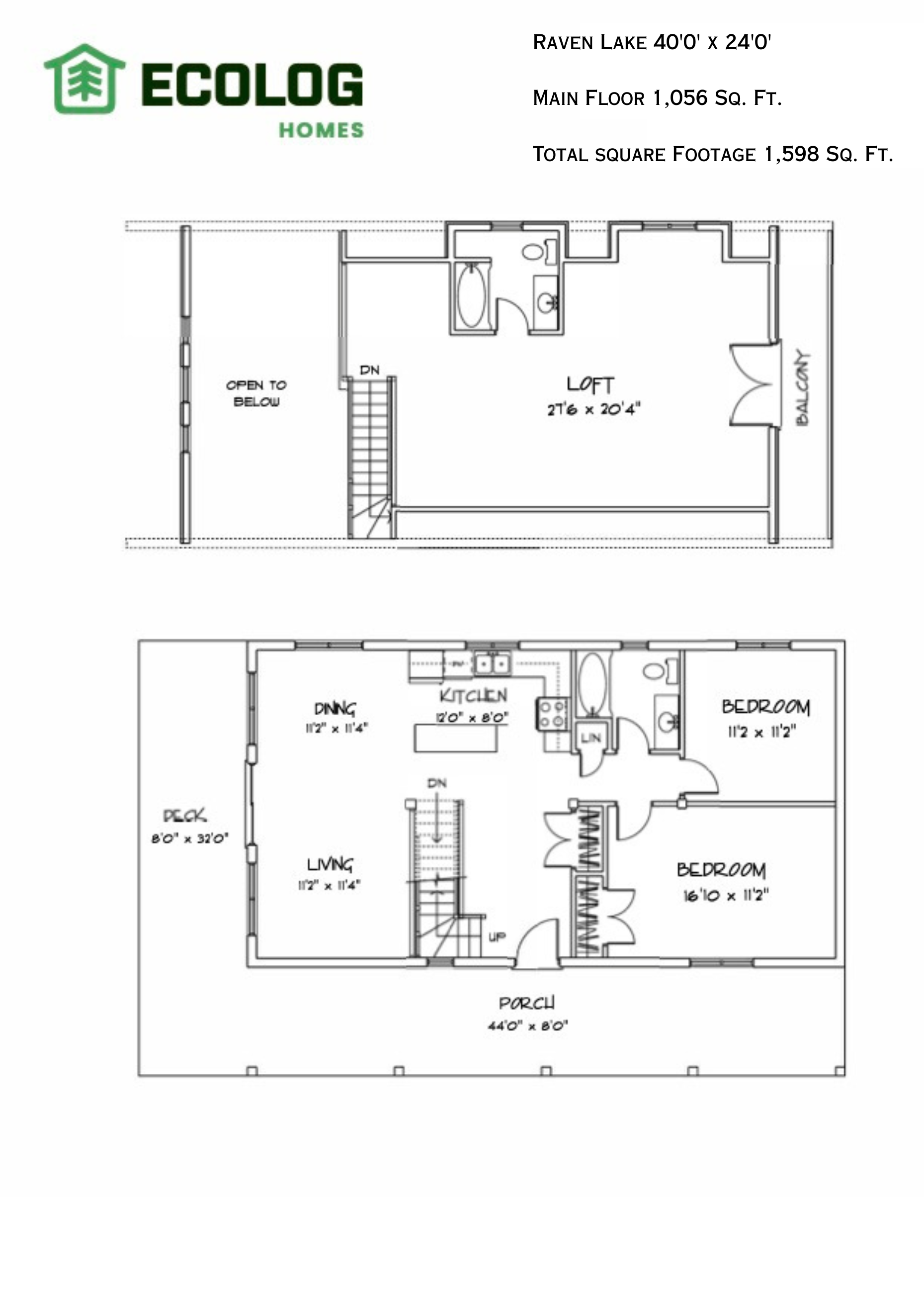
Raven Lake — 1,056 sq ft ground floor · 1,598 sq ft livable area
Buck Lake — 1,056 sq ft ground floor · 1,832 sq ft livable area
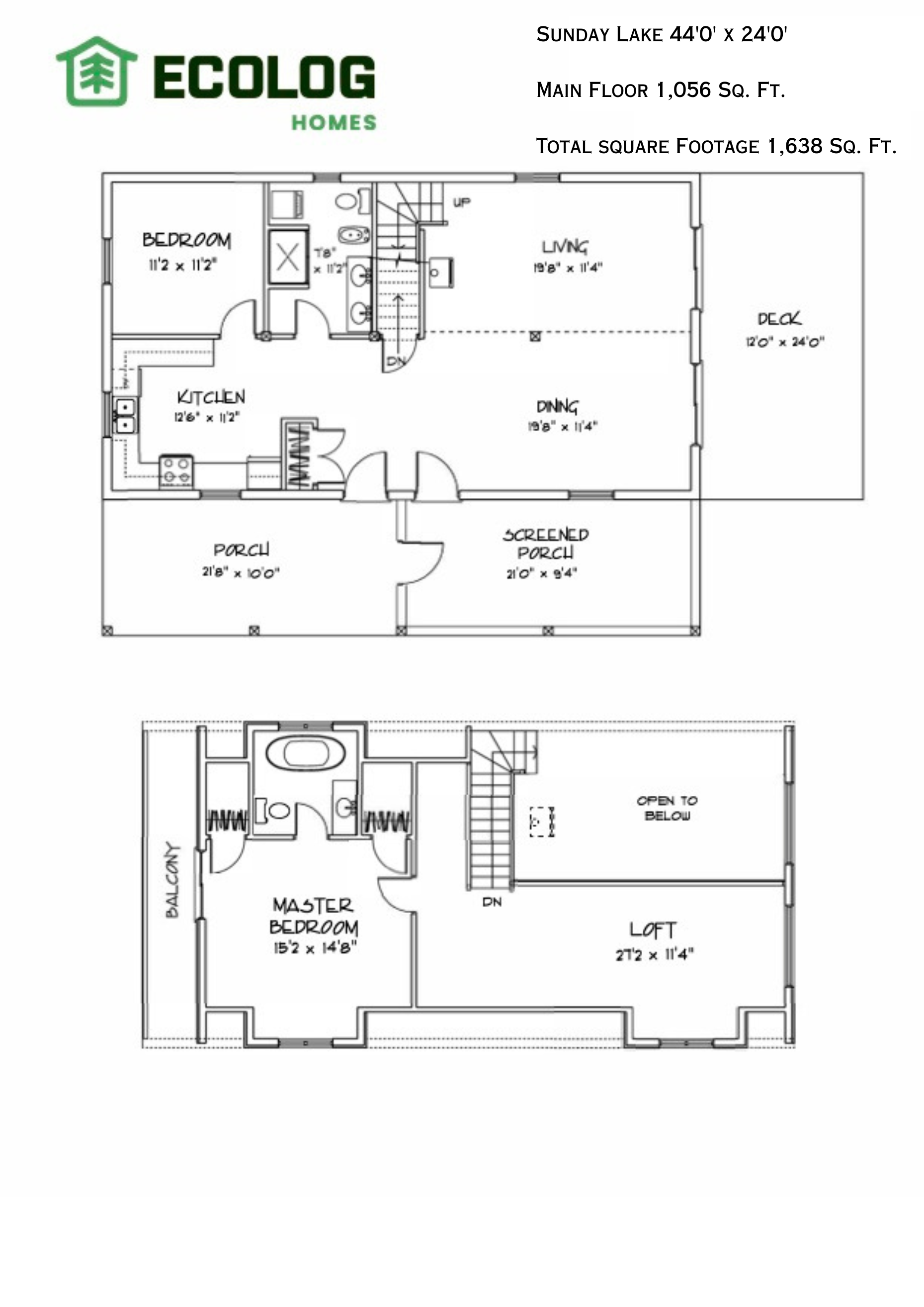
Sunday Lake — 1,056 sq ft ground floor · 1,638 sq ft livable area
Finlay Lake — 1,152 sq ft ground floor · 1,743 sq ft livable area
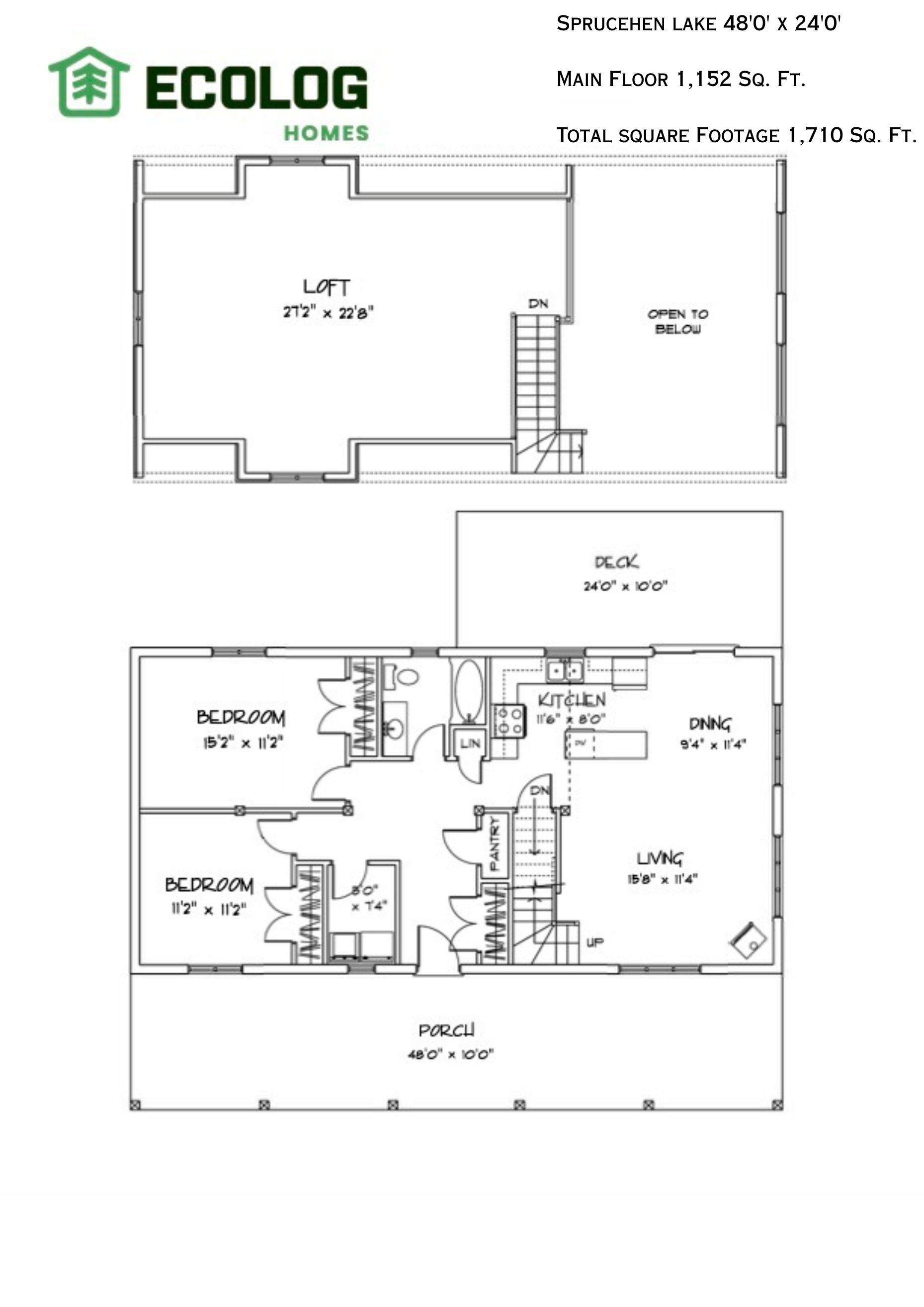
Sprucehen Lake — 1,152 sq ft ground floor · 1,710 sq ft livable area
Lost Lake — 1,152 sq ft ground floor · 1,824 sq ft livable area
Single-Wing Designs
Ground floor area: 1,248–1,536 sq ft
Single-Wing designs extend the ground footprint with a dedicated wing, creating a clear separation between shared living areas and private rooms. This layout allows for greater flexibility, improved flow, and additional options when customizing the interior.
Plans in this category:
Azure Lake — 1,248 sq ft ground floor · 1,874 sq ft livable area
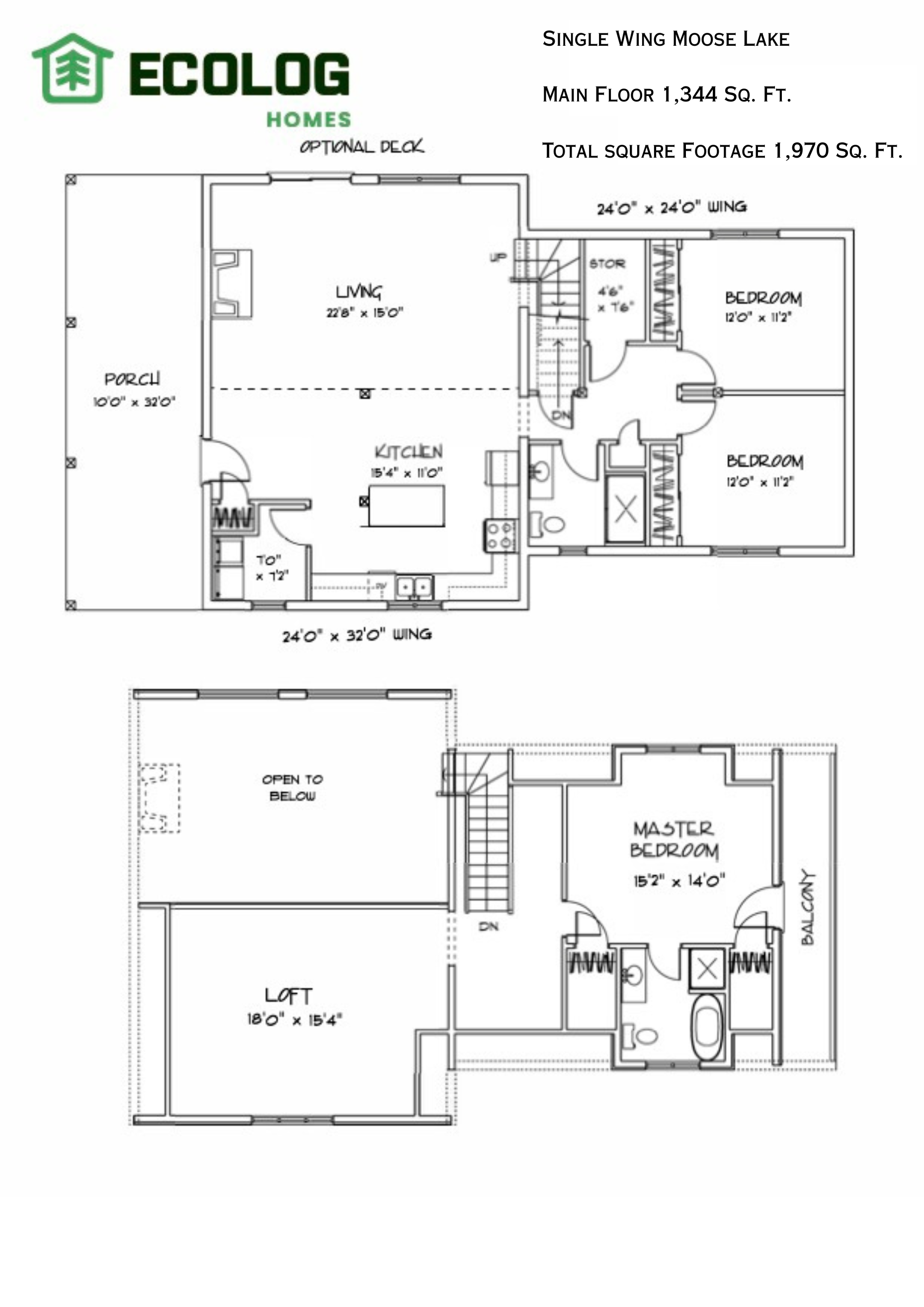
Moose Lake — 1,344 sq ft ground floor · 1,970 sq ft livable area
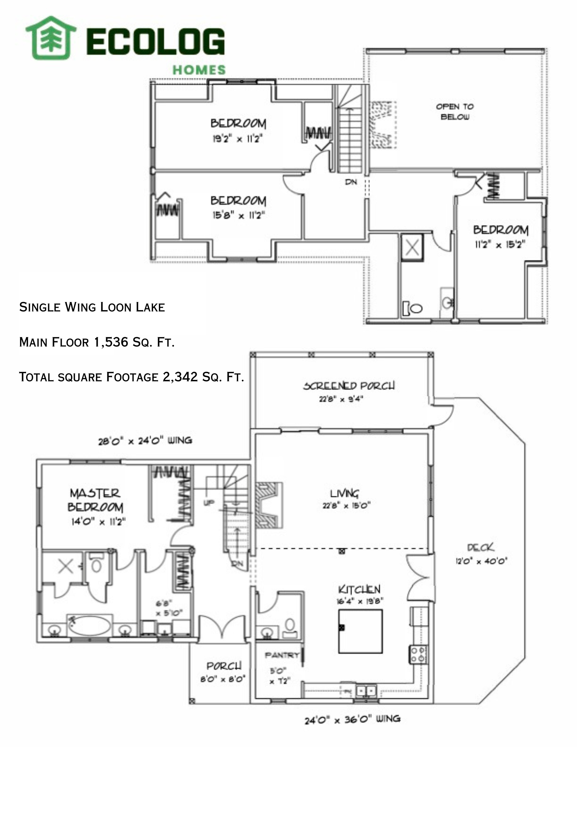
Loon Lake — 1,536 sq ft ground floor · 2,342 sq ft livable area
Macdonald Lake — 1,440 sq ft ground floor · 2,224 sq ft livable area
Double-Wing Designs
Ground floor area: 1,440–1,900 sq ft
Double-Wing designs offer the most spacious and versatile layouts. With two extended wings, these homes provide excellent separation of functions and generous living areas, making them ideal for larger households or long-term living.
Plans in this category:
Stocking Lake — 1,536 sq ft ground floor · 2,408 sq ft livable area
Bivouac Lake — 1,536 sq ft ground floor · 2,404 sq ft livable area
Rainbow Lake — 1,632 sq ft ground floor · 2,604 sq ft livable area
Duck Lake — 1,728 sq ft ground floor · 2,681 sq ft livable area
Powderhorn Lake — 1,900 sq ft ground floor · 2,837 sq ft livable area
About ground floor area and livable area
Ground floor area refers to the building footprint at ground level.
Total livable area includes the full ground floor plus usable loft space and is calculated conservatively to reflect minimum headroom requirements, stair openings, and exterior dimension measurements. Optional features such as dormers or layout changes can increase livable space and are handled on a project-by-project basis.